Shop Construction Working Plan Design Free DWG File
Description
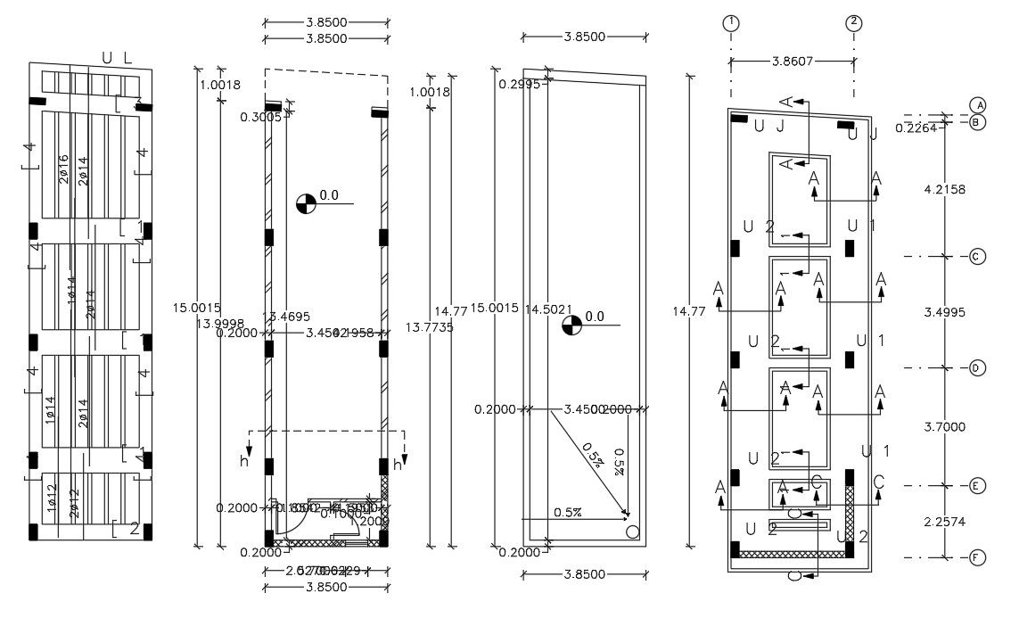
2d CAD drawing of commercial shop construction working plan includes foundation plan with excavation detail and RCC slab bar structure design. download free DWG file of house construction plan drawing.
Uploaded by:
