LOGIN
HOME
CATEGORIES
UPLOAD FILE
PRICING
HOUSE PLAN
ABOUT US
CONTACT US
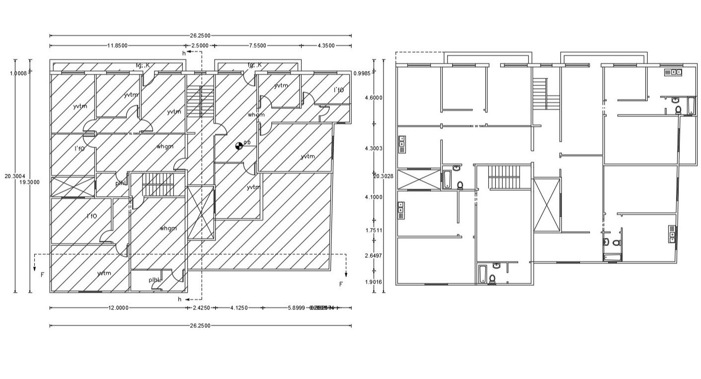
65' X 85' Apartment House Plan AutoCAD Drawing
Home
Categories
Architecture
Bungalow House Design
65' X 85' Apartment House Plan AutoCAD Drawing
Uploaded by:
Komal
View Profile
View Profile
Description
65 by 85 feet plot size for apartment cluster plan design with dimension detail also has 4 unit house plans. download 1 and 2 BHK apartment house plan DWG files.
File Type:
DWG
File Size:
77 KB
Category::
Architecture
Sub Category::
Bungalow House Design
type:
Gold
Uploaded by:
Komal
View Profile
Download
Add to libary
find Latest
Related
Files