2300 Sq Ft Architecture House Elevation Design
Description
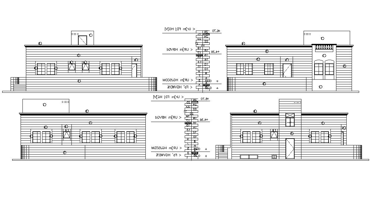
The architecture house elevation design in all side that shows single storey floor level, wall design, door and window marking detail. this drawing helps to visualization after the house construction building looks. download architecture house elevation design DWG file.
Uploaded by:

