LOGIN
HOME
CATEGORIES
UPLOAD FILE
PRICING
HOUSE PLAN
ABOUT US
CONTACT US
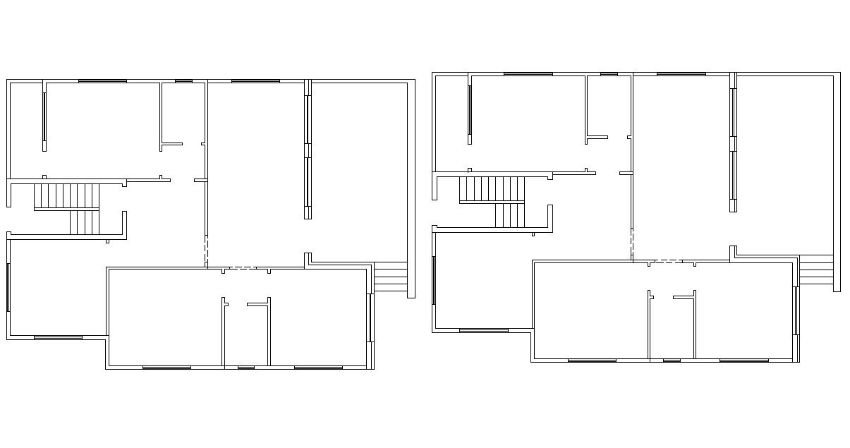
32 By 45 Feet House Plan AutoCAD Drawing
Home
Categories
Architecture
Bungalow House Design
32 By 45 Feet House Plan AutoCAD Drawing
Uploaded by:
Komal
View Profile
View Profile
Description
32 by 45 feet plot size for house ground floor plan includes 3 bedrooms, kitchen, drawing and living room. download house plan with sanitary ware detail.
File Type:
DWG
File Size:
351 KB
Category::
Architecture
Sub Category::
Bungalow House Design
type:
Gold
Uploaded by:
Komal
View Profile
Download
Add to libary
find Latest
Related
Files