LOGIN
HOME
CATEGORIES
UPLOAD FILE
PRICING
HOUSE PLAN
ABOUT US
CONTACT US
2 Storey Apartment House Plan Free DWG File
Home
Categories
Architecture
Apartment Drawing
2 Storey Apartment House Plan Free DWG File
Uploaded by:
Komal
View Profile
View Profile
Description
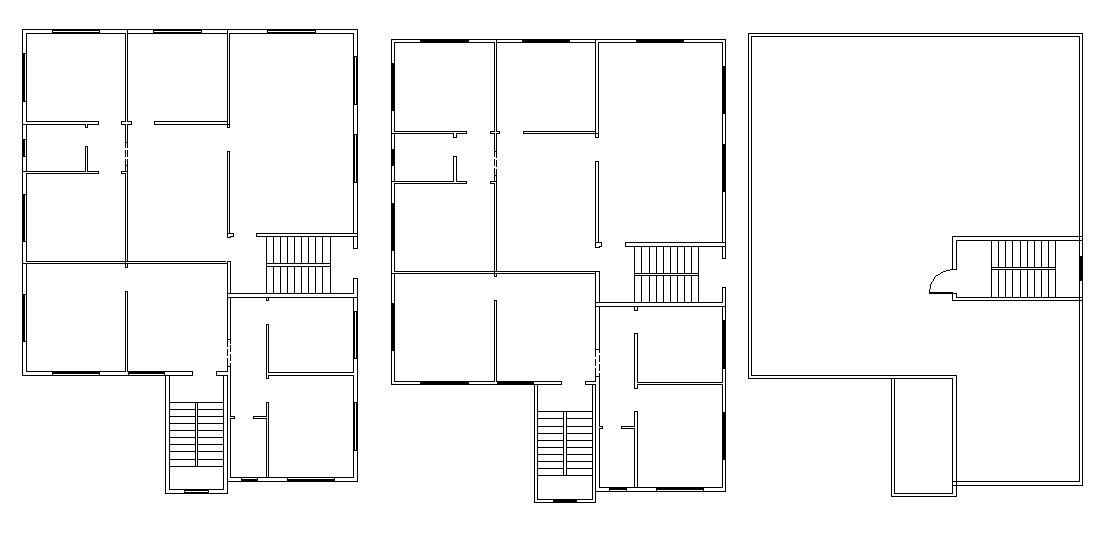
download free 2 storey apartment house floor plan design includes 4 bedrooms, kitchen, drawing room, living area and hall design.
File Type:
DWG
File Size:
233 KB
Category::
Architecture
Sub Category::
Apartment Drawing
type:
Free
Uploaded by:
Komal
View Profile
Download
Add to libary
find Latest
Related
Files