AutoCAD House Electrical And Plumbing Layout Plan Design
Description
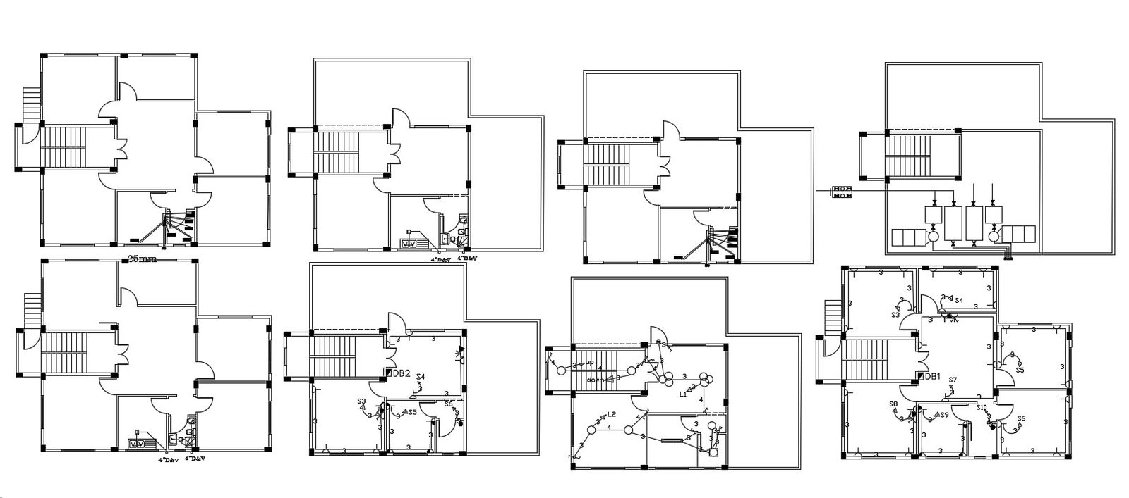
the architecture AutoCAD house floor plan design electrical layout plan design that shows ceiling light point, switchboard detail and wiring plan. also has plumbing layout plan includes pipeline connect to kitchen and bathroom with water meter detail on the terrace floor plan. download house plan design DWG file.
Uploaded by:

