AutoCAD House Plumbing Layout Plan Design DWG File
Description
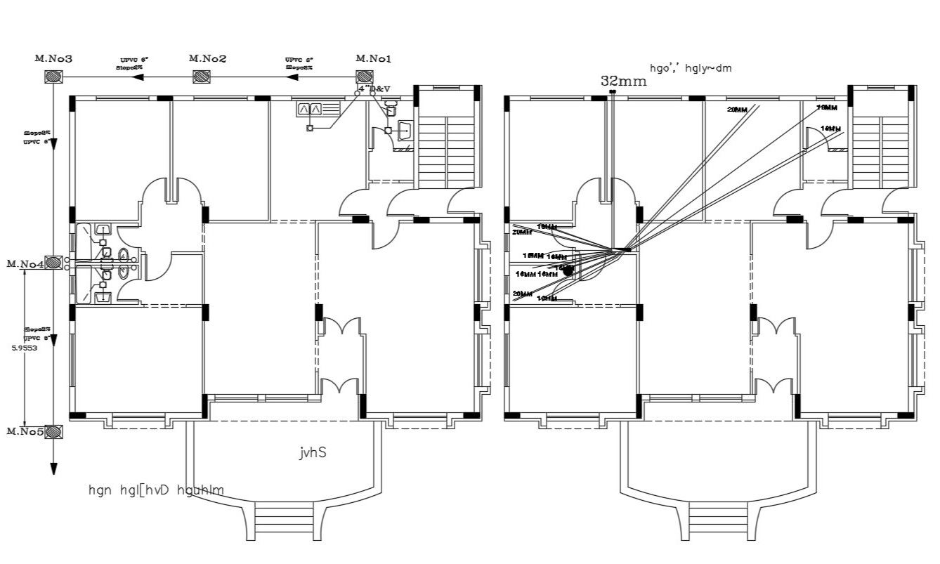
The architecture AutoCAD house ground floor plan plumbing layout CAD drawing includes pipeline connection with kitchen and toilet also has drainage line which is gone to chamber box and after directly connect with public manhole.
Uploaded by:

