Multi-Family Apartment House Plan Design CAD Drawing
Description
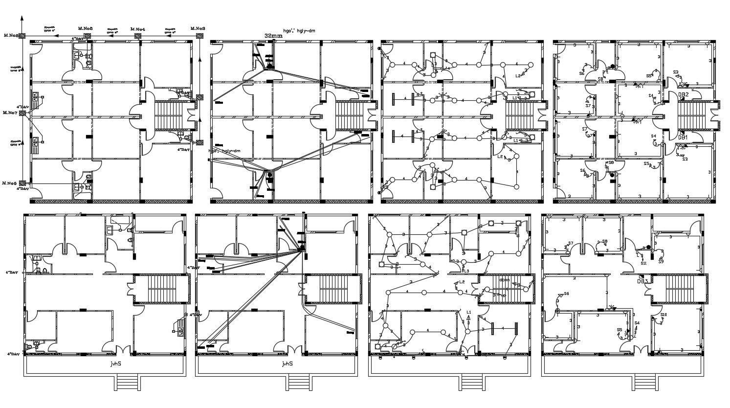
The architecture floor plan of a multifamily house plan design includes electrical layout and plumbing plan design that shows ceiling light point and wiring plan design. download DWG file of apartment floor plans design get more detail of gutter line which is connected to manhole.
Uploaded by:

