LOGIN
HOME
CATEGORIES
UPLOAD FILE
PRICING
HOUSE PLAN
ABOUT US
CONTACT US
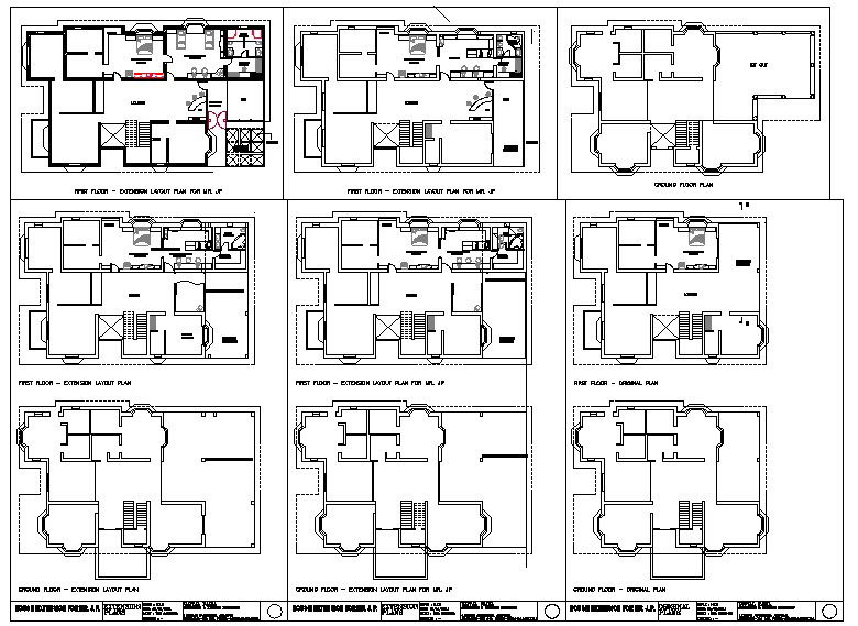
Floor lay-out design in apartment
Home
Categories
Architecture
Apartment Drawing
Floor lay-out design in apartment
Uploaded by:
Neha
mishra
View Profile
View Profile
Description
Floor Lay-out design & electric lay-out detail & mansion tthe room & divide area the lay-out.
File Type:
DWG
File Size:
1 MB
Category::
Architecture
Sub Category::
Apartment Drawing
type:
Gold
Uploaded by:
Neha
mishra
View Profile
Download
Add to libary
find Latest
Related
Files