3 BHK House Electrical And Plumbing Plan Design DWG File
Description
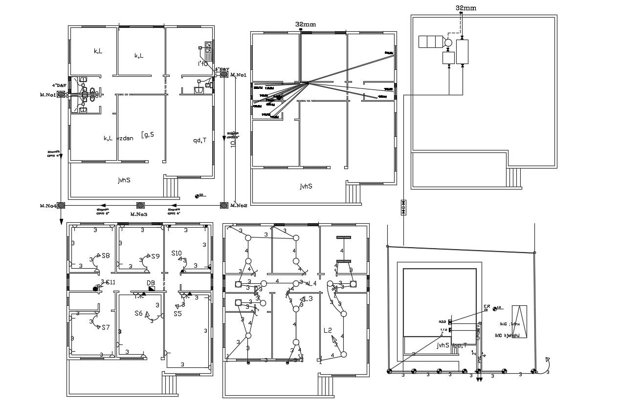
2d CAD drawing of architecture residence house ground floor plan design includes electrical light layout plan and plumbing plan design with drainage line which is connected with chamber box. download DWG file of house plan CAD drawing.
Uploaded by:

