40 By 55 Feet House Site Plot Plan With Parking Design
Description
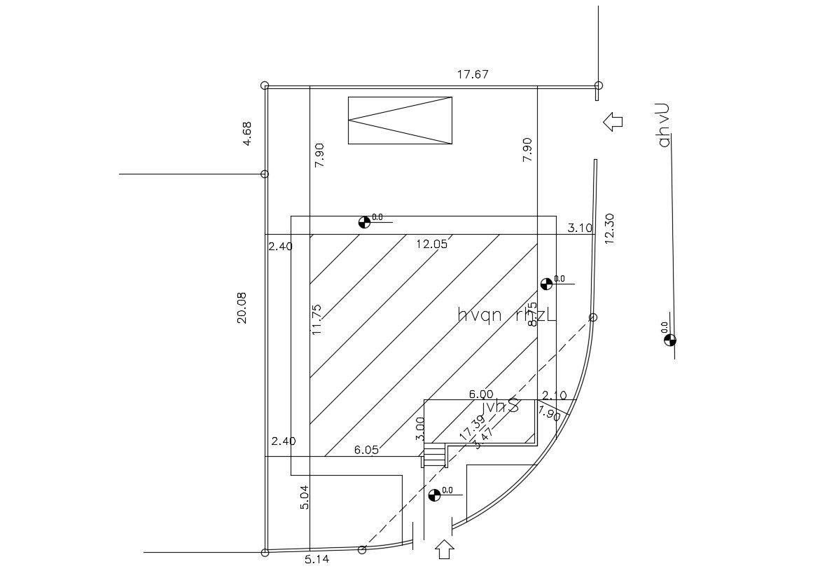
40 X 55 Feet Plot size and 244 Sq Yards house site plot plan CAD drawing that shows build area, 2 entranceway, garden and 1 big car parking space. download 2200 sq ft house plot plan DWG file.
Uploaded by:

