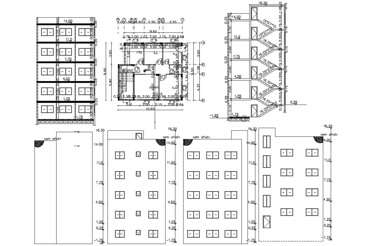
107 Square Yards 3 BHK Apartment Plan DWG File
Description
30 Feet by 32 Feet plot size for apartment house plan drawing that shows 3 BHK floor plan design also has 5 storey apartment building sectional elevation design with dimension detail. download 107 Square Yards plot size for apartment house plan DWG file.
Uploaded by:

