Architecture Bungalow Building Design CAD Drawing
Description
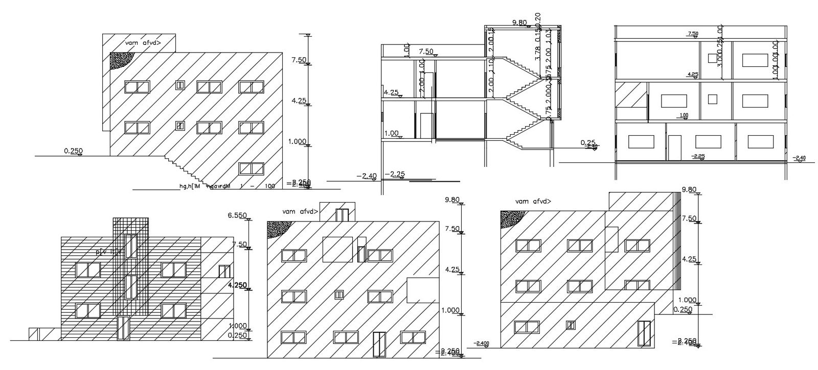
2d CAD drawing of residence house bungalow building sectional elevation design in all side that shows floor level detail, door and window marking design. download bungalow design DWG file and get front elevation which is help to visualisation looks after complete the building.
Uploaded by:

