House Plan With Electrical Layout CAD Drawing

House Plan With Electrical Layout CAD Drawing
Profile

Uploaded by:

Komal

Description
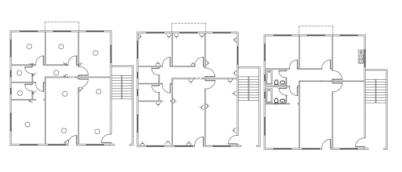
2d CAD drawing of 3 BHK house floor plan design and electrical layout plan that shows ceiling light point and switchboard detail. download free 3 BHK house plan DWG file.
Profile

Uploaded by:

Komal

find Latest

Related Files