LOGIN
HOME
CATEGORIES
UPLOAD FILE
PRICING
HOUSE PLAN
ABOUT US
CONTACT US
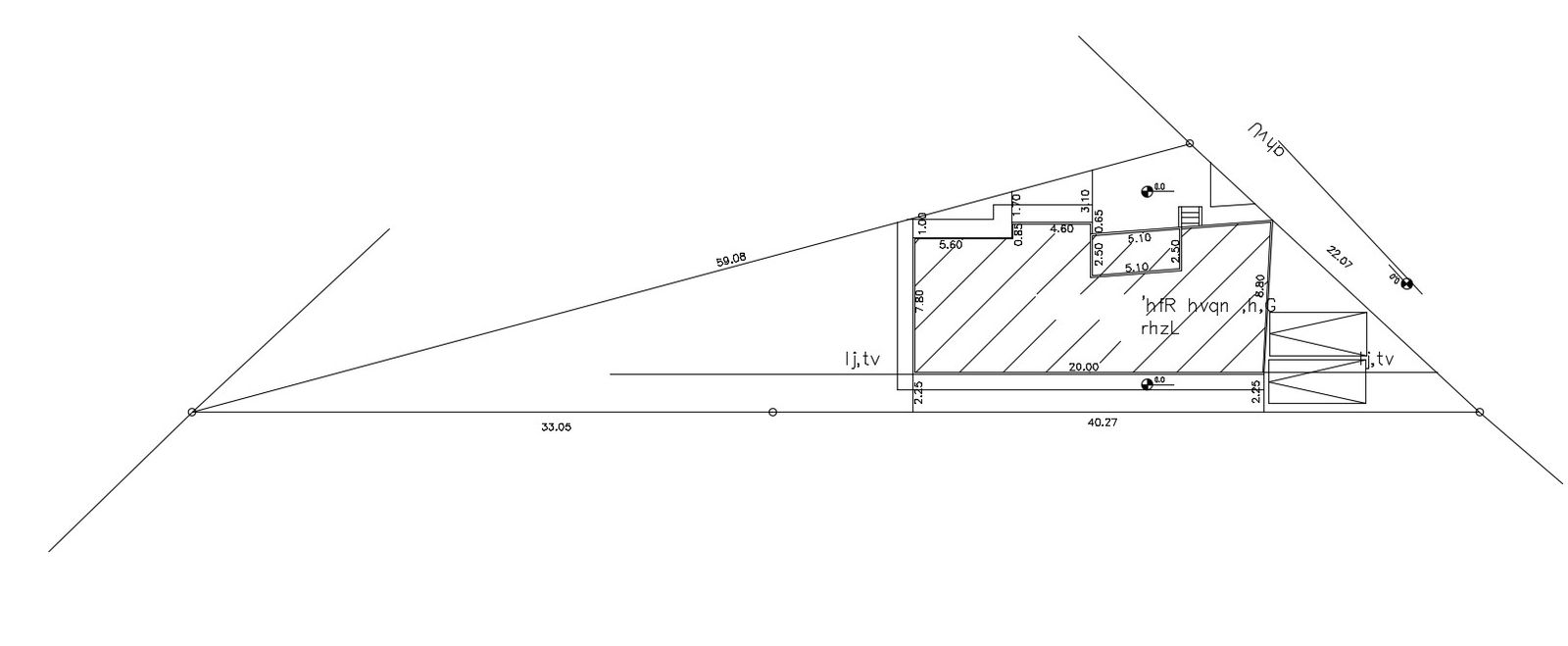
22 By 72 Feet House Plot Plan DWG File
Home
Categories
Urban Design
Town Design And Planning
22 By 72 Feet House Plot Plan DWG File
Uploaded by:
Komal
View Profile
View Profile
Description
2d CAD drawing of residence house plot plan design includes 1584 sq ft build up area with all dimension detail. download free DWG file house plot plan.
File Type:
DWG
File Size:
123 KB
Category::
Urban Design
Sub Category::
Town Design And Planning
type:
Free
Uploaded by:
Komal
View Profile
Download
Add to libary
find Latest
Related
Files