Architecture House Building Sectional Elevation Design
Description
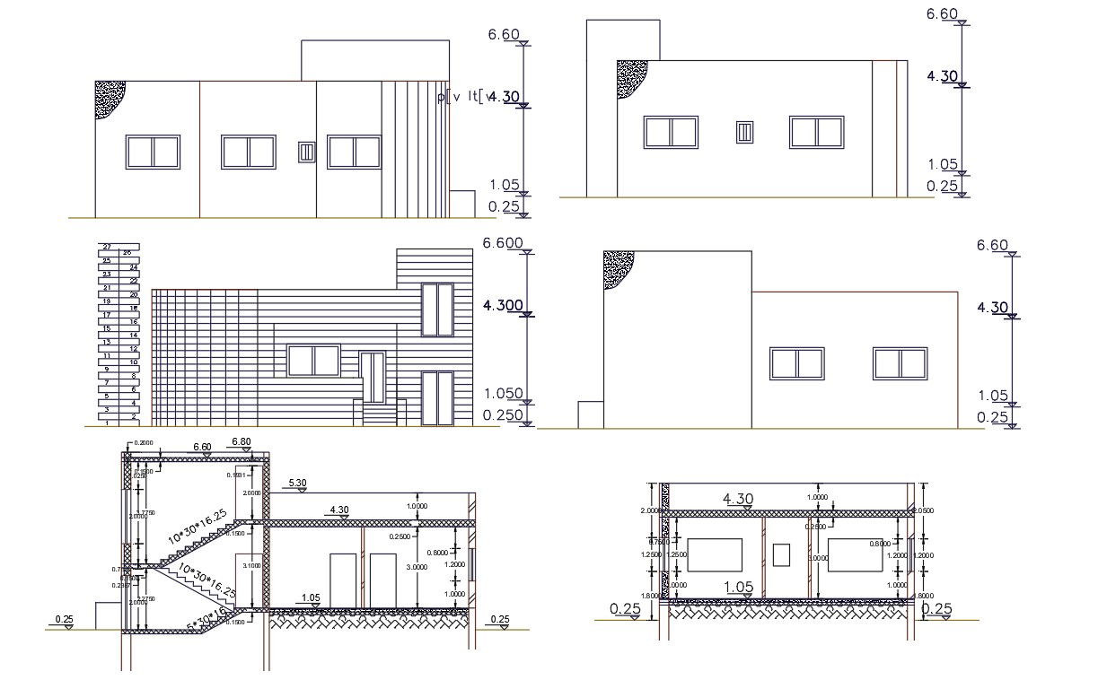
2d CAD drawing of architecture single storey house building sectional elevation design that shows all side view with all side dimension detail. download house building design that will be helpful to assume how looks house after complete the building. download house building design CAD drawing.
Uploaded by:

