45' X 40' Feet House Electrical Layout Plan Design
Description
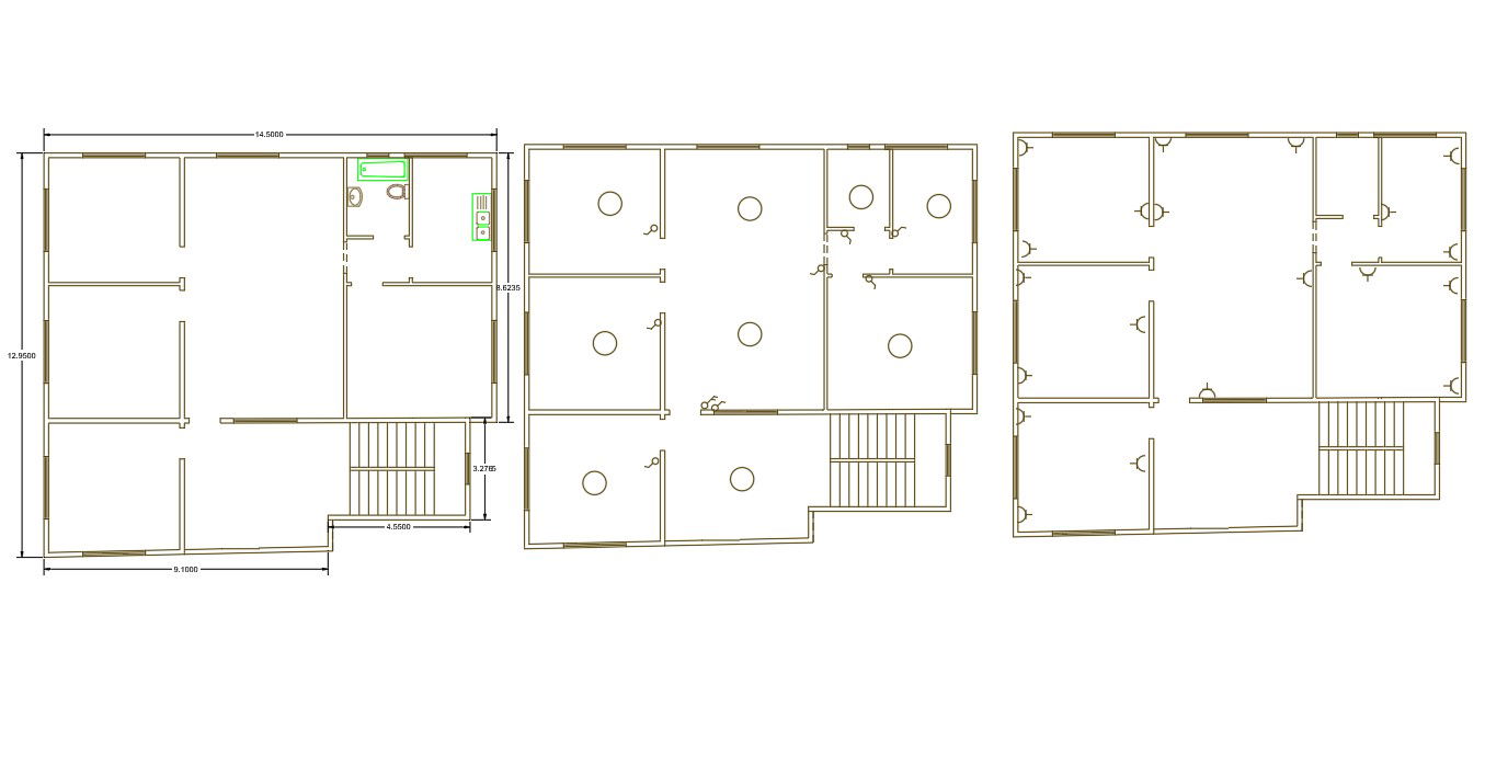
2d CAD drawing of 45 by 40 feet plot size for house electrical layout plan design that shows ceiling light point and switchboard installation marking detail. download 3 bedroom house plan design DWG file.
Uploaded by:

