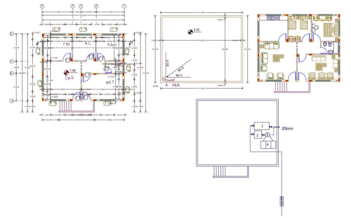
30 x 36 East facing Plan With Furniture Layout
Description
30 X 36 feet plot size for house ground floor plan with furniture layout design that shows the contain 2 bedroom, kitchen, drawing room, living area and common toilet is attached to the living area also for the guests. download architecture house plan design DWG file.
Uploaded by:

