Architecture Modern House Plan AutoCAD Drawing
Description
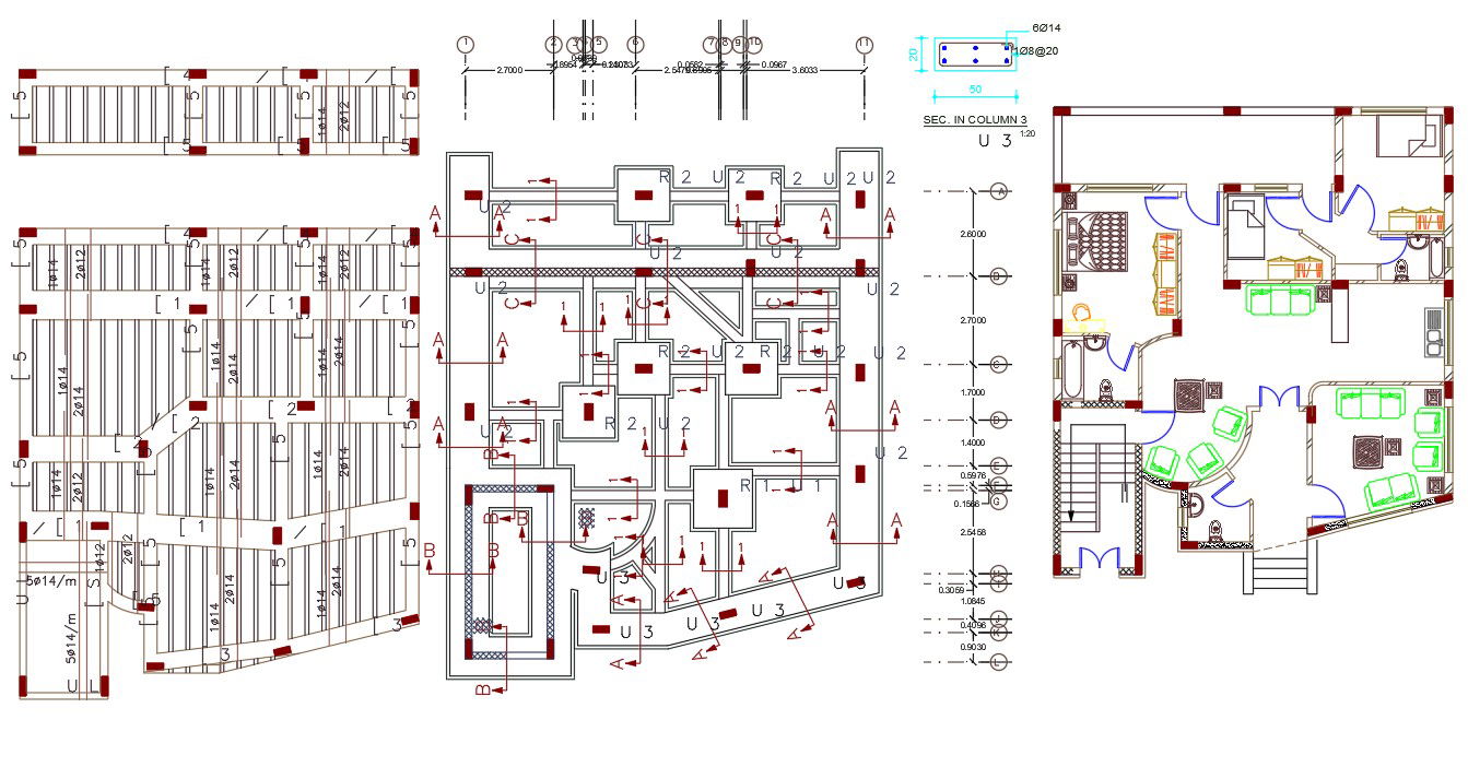
The architecture residence house furniture layout plan design that shows 3 bedrooms, kitchen, drawing and living room also has common toilet which is near by living area for guest. download 3 BHK house house plan with construction working drawing foundation plan and slab bar structure design.
Uploaded by:

