3 BHK House Plumbing Layout Plan DWG File
Description
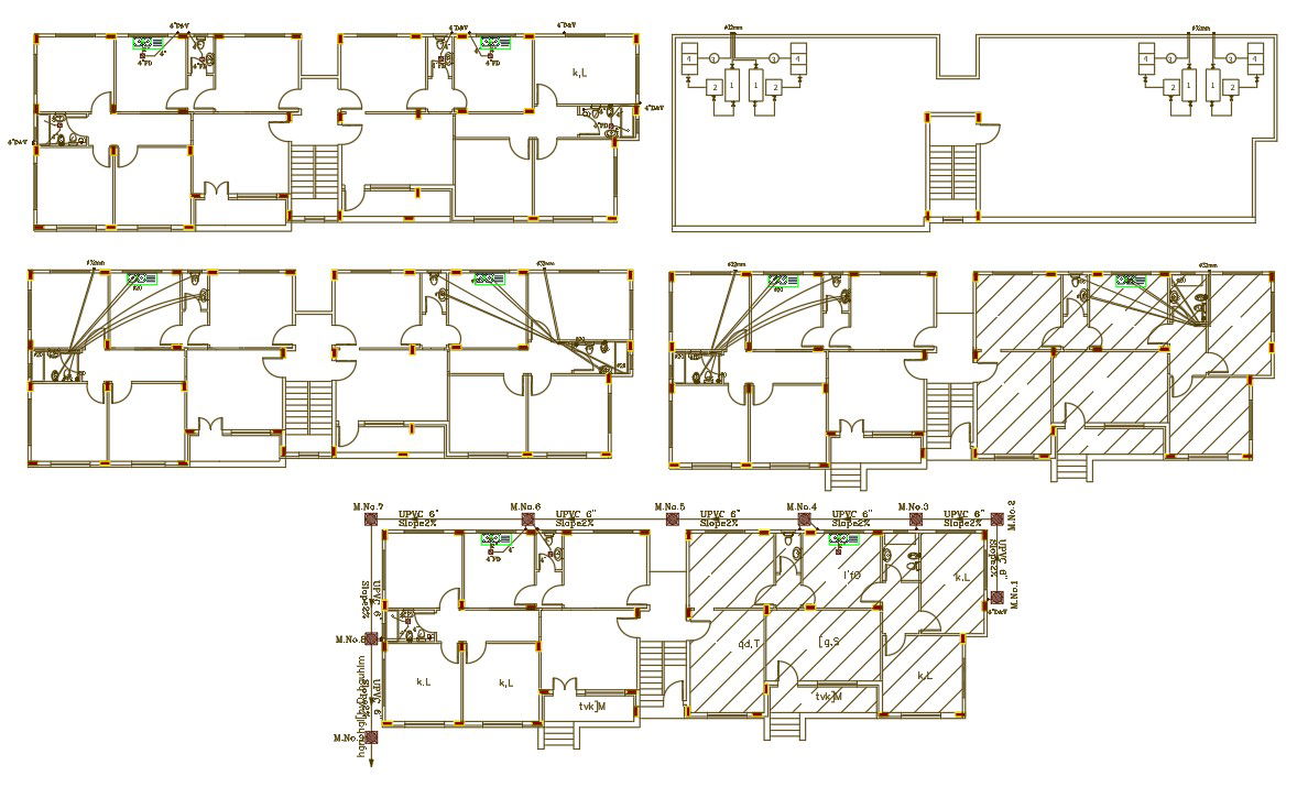
AutoCAD drawing of architecture apartment 3 BHK house plumbing layout plan design includes pipeline which is connected kitchen to toilet with drainage line detail that going to chamber box and after public manhole detail. Download 3 BHK house plumbing layout plan design DWG file.
Uploaded by:

