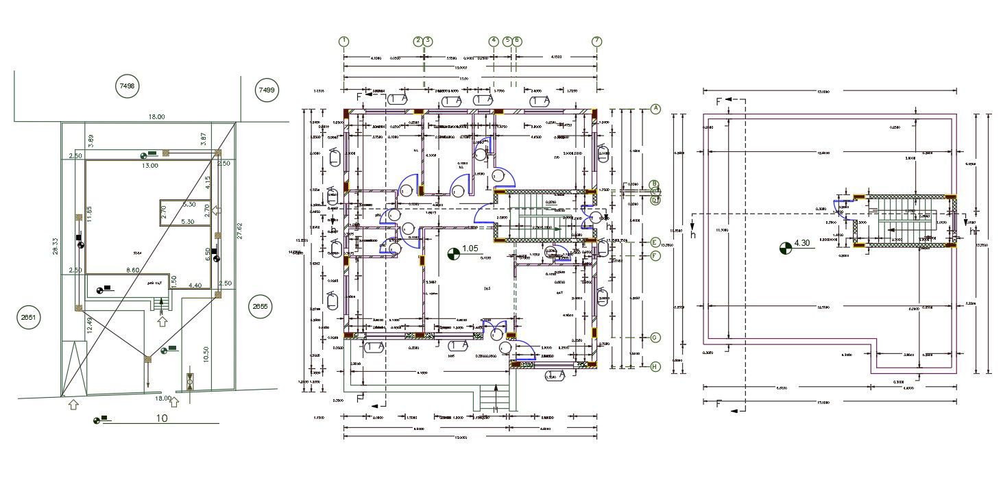
42 By 45 House Ground Floor Plan Design DWG File
Description
AutoCAD drawing of architecture ground floor plan design the contains spacious 3 bedrooms, kitchen, drawing and living area. The Bedroom in the plan has an attached 2 toilet and one of the common toilets is attached to the living area. download 42 by 45 feet house plan with column layout and master ground plan design has 1 big car parking space.
Uploaded by:

