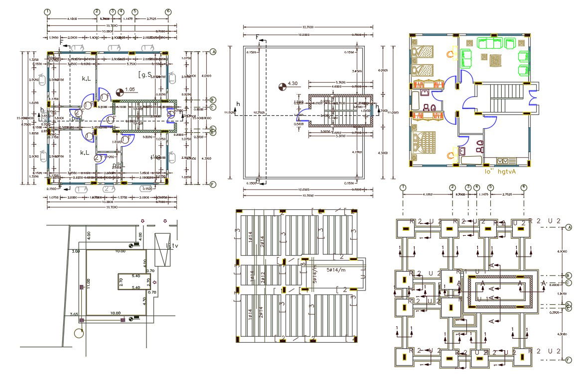
32' X 36' House Plan AutoCAD File
Description
32' X 36' plot size house ground plan design that shows 3 bedrooms, kitchen, drawing room, family lounge, and 2 common toilets. download 1152 sq ft house plan and get more detail of Foundation plan and slab bar construction working with master plan design DWG file.
Uploaded by:

