45 X 52 House Electrical And Plumbing Plan AutoCAD File
Description
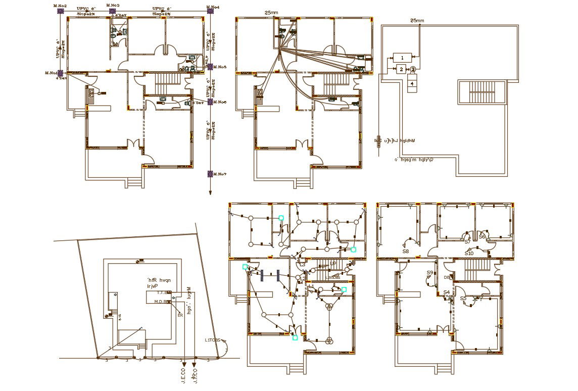
3 BHK house plan design CAD drawing includes plumbing and electrical layout plan design that shows ceiling light point, wiring plan, and switch board installation marking detail. also has a water pipeline and drainage chamber line with sanitary ware detail. download 45 by 52 feet architecture house plan DWG file.
Uploaded by:

