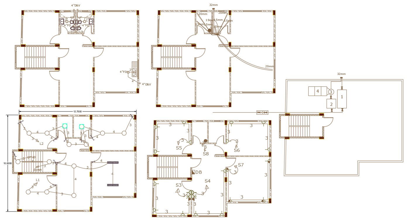
32 By 45 Feet House Electrical And Plumbing Plan Design
Description
AutoCAD drawing of 32 X 45 feet plot size for 2 bedroom house plumbing and electrical layout plan design that shows the purpose is to distribute energy and appliances around the house for proper installation of the wiring, switches, and light. also has water pipeline with sanitary ware detail DWG file.
Uploaded by:

