32' X 40' Compete House Plan Design AutoCAD File
Description
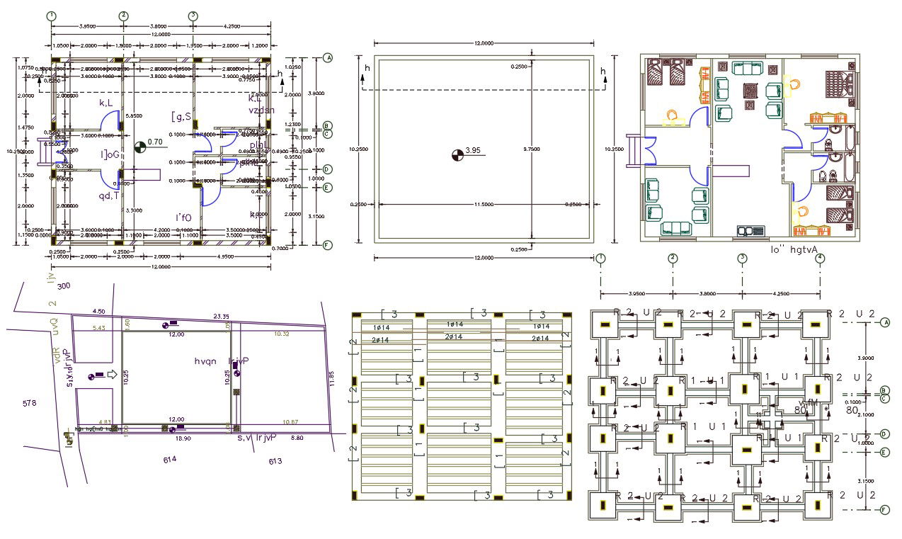
32 by 40 feet architecture AutoCAD house furniture layout plan design includes spacious 3 bedrooms, large open kitchen with views to the living room and back yard, drawing room and 2 toilets. download (Plot Size 142 Square Yards) master suite fit for a king and queen house plan design DWG file and get more detail of column footing and slab bar design.
Uploaded by:

