House detail
Description
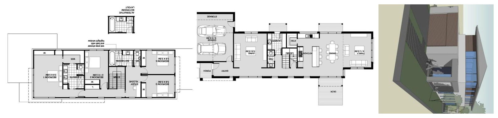
This drawing detail in ground floor of drawing room, living room, kitchen, dining room, stair & first floor detail in 4 bed room with att. bathroom, & elevation design.
File Type:
DWG
File Size:
20 KB
Category::
Projects
Sub Category::
Architecture House Projects Drawings
type:
Gold

Uploaded by:
Liam
White

