26 By 55 Feet House Sanitary Ware Plan DWG File
Description
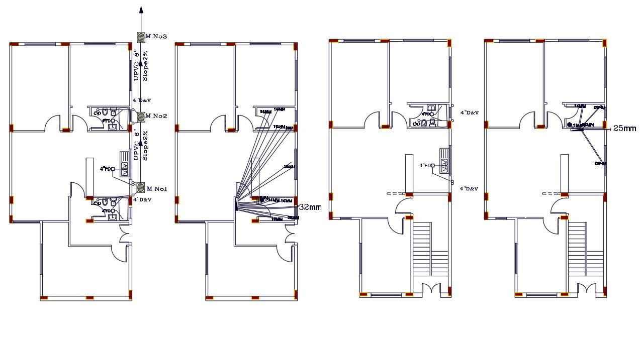
2d CAD drawing of 2 BHK house plumbing layout plan design that shows pipeline detail which is a connected kitchen to the bathroom. also has a drainage line detail joint one by one chamber box and goes to public manhole. download 1340 square feet house plumbing plan with sanitary ware detail DWG file.
Uploaded by:

