Apartment House Electrical Layout Plan AutoCAD File
Description
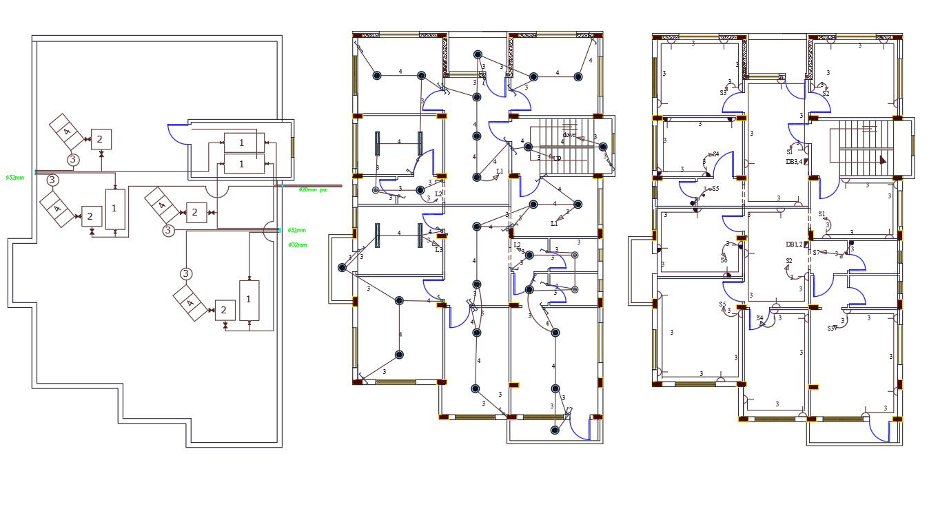
45 by 65 feet apartment house electrical layout plan design which proper guiding of wiring installation and operation of the different elements included switches and ceiling light. download AutoCAD house electrical layout plan design DWG file.
Uploaded by:

