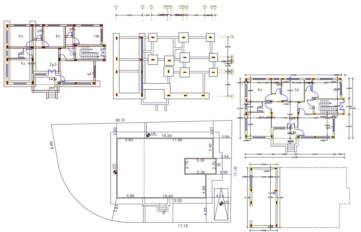
32' X 52' House Plan Design DWG File (185 Sq Yards)
Description
AutoCAD drawing of 32 by 52 feet house ground floor plan design which has master plan, foundation plan with centre line detail, column layout and a number of door marking design. The ground floor has a parking space to accommodate 1 big car parking space with compound wall design. download (185 Sq Yards) 3 bedroom house plan design DWG file.
Uploaded by:

