1040 Square Feet House Building Design DWG File
Description
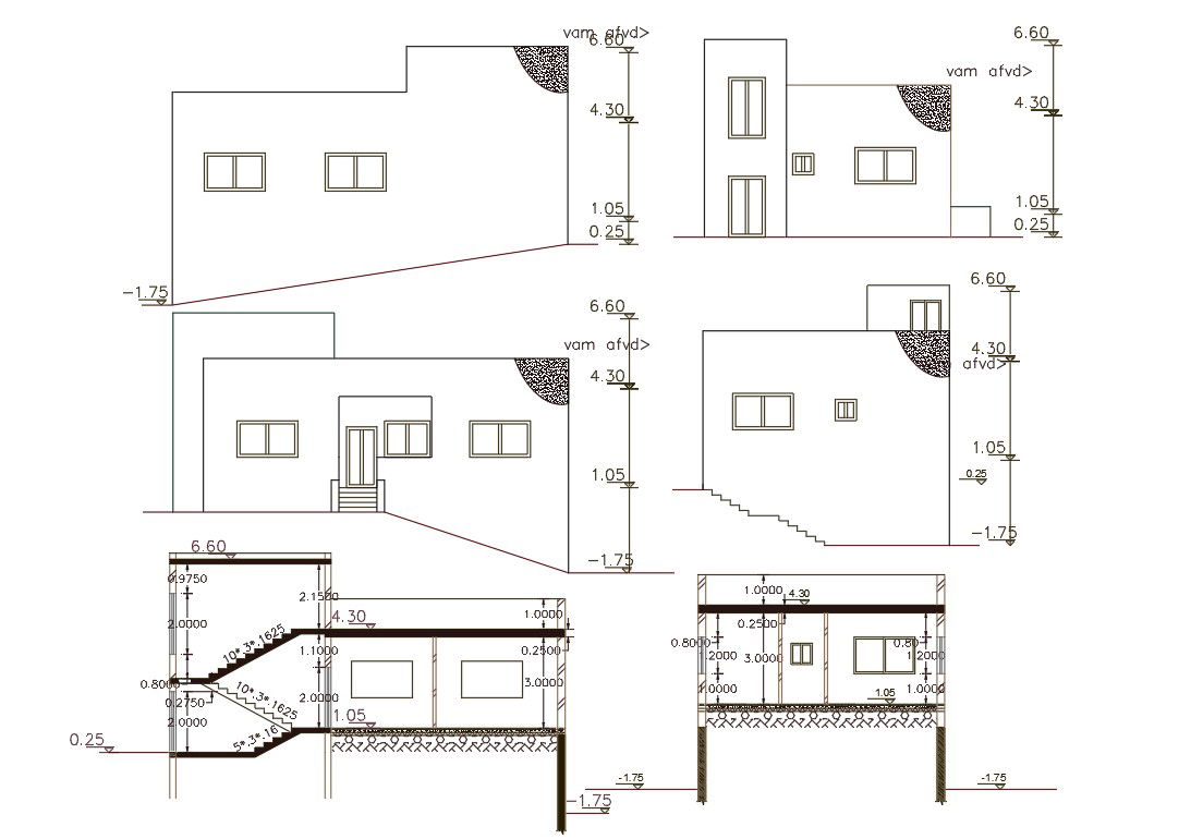
2d CAD drawing of 2 BHK house building sectional elevation design which is view from a different angle with dimension detail. Have a plot of size 40 feet width and 26 feet and depth house building design. download 115 square yards single storey house building design DWG file.
Uploaded by:

