3 BHK Apartment With Master Plan AutoCAD File
Description
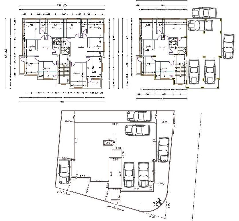
50 by 62 feet plot size for 3 bedroom house apartment plan with all dimension detail also has master plan CAD drawing includes building area with a parking lot and compound wall design. download 3100 Square feet 2 unit house apartment plan design DWG file.
Uploaded by:

