LOGIN
HOME
CATEGORIES
UPLOAD FILE
PRICING
HOUSE PLAN
ABOUT US
CONTACT US
1 BHK apartment Building Section Drawing DWG File
Home
Categories
Architecture
Apartment Drawing
1 BHK apartment Building Section Drawing DWG File
Uploaded by:
Komal
View Profile
View Profile
Description
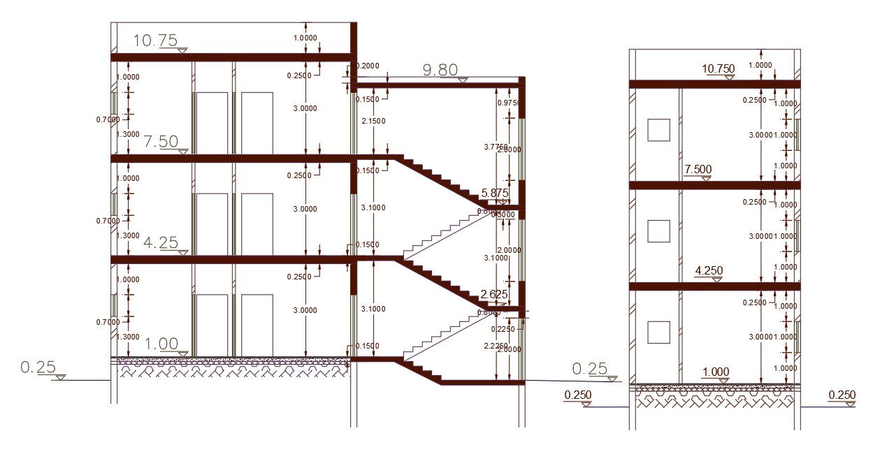
2d CAD drawing of 1 BHK apartment building section drawing that shows the standard staircase with dimension detail DWG file.
File Type:
DWG
File Size:
69 KB
Category::
Architecture
Sub Category::
Apartment Drawing
type:
Gold
Uploaded by:
Komal
View Profile
Download
Add to libary
find Latest
Related
Files