5 Storey Apartment Building Section Drawing DWG File
Description
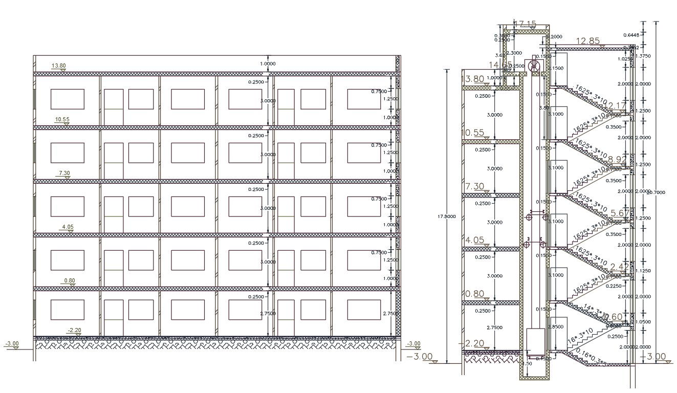
this is 2 BHK apartment 72 by 32 feet plot size building section drawing that shows the standard staircase with dimension detail and lift elevator detail. download 5 storey apartment building section drawing DWG file.
Uploaded by:

