1500 Square Feet House Building Design AutoCAD File
Description
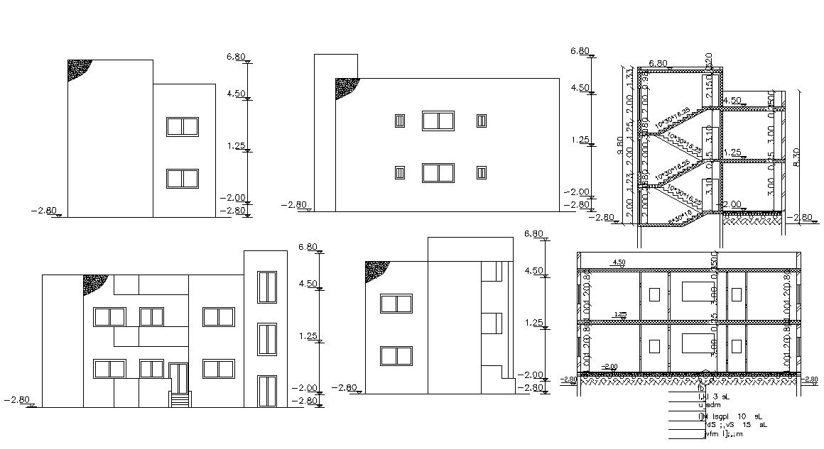
2 storey residence house building sectional elevation design with all side view detail. also has 50 feet width and 30feet depth of house building structure design. download 1500 sq ft house building design DWG file.
Uploaded by:

