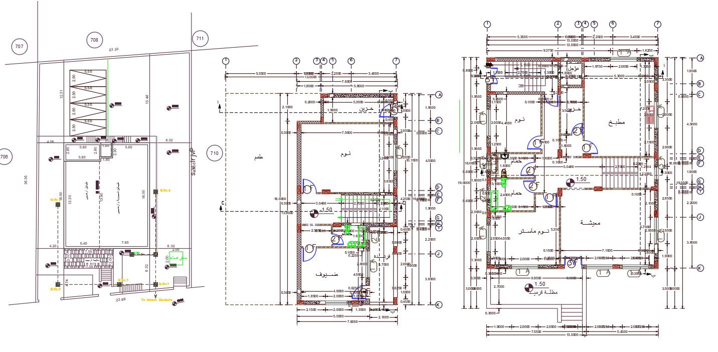
42' X 62' House Floor With Master Plan AutoCAD File
Description
42 X 62 feet plot size for architecture house master plan and floor plan with center line plan detail. also has column layout, door and window annotation design. the ground floor plan has 4 car parking spaces with accommodation a compound wall, and a built-up area 2600 square feet design. download modern house bungalow plan design with dimension detail DWG file.
Uploaded by:

