House Plumbing Layout Plan Design AutoCAD File
Description
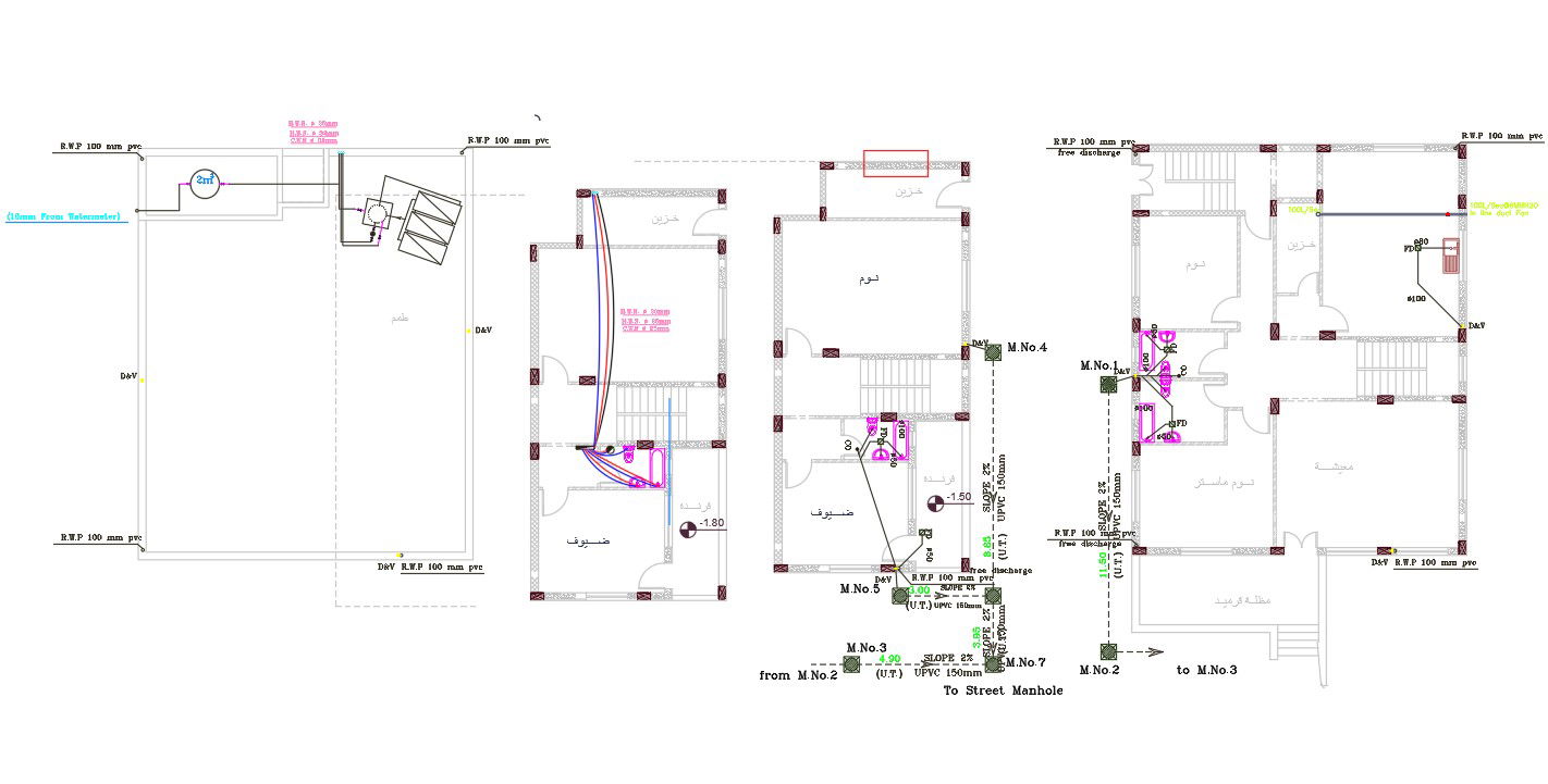
2600 square feet architecture family house plumbing layout plan design CAD drawing shows pipe line installation guiding detail which is connected kitchen to bathroom and WC toilet. also has drainage gutter line that gone through one by one chamber box and after to street manhole. download 100 mm pipe line with sanitary ware detail for house DWG file.
Uploaded by:

