2000 SQ Ft Residence Bungalow Floor Layout Plan
Description
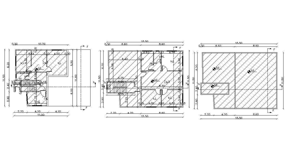
50' X 40' FT (2000 SQ Ft) Residence Duplex Bungalow floor layout architecture plan that shows bungalow construction dimension working set, centerline details, floor level, door window annotation, room details, staircase, and bungalow various other works details. Download architecture bungalow layout plan of size 2000 SQ Ft (665 Square yard) presented in AutoCAD Drawing.

Uploaded by:
akansha
ghatge

