Joint House Building Design AutoCAD File
Description
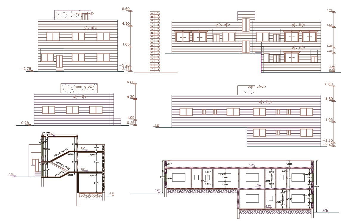
This is joint 2 BHK house building all side elevation design and section drawing that shows door and window annotation. also has some AutoCAD hatching design that will help to improve the CAD presentation. download joint house building sectional elevation design DWG file.
Uploaded by:

