Architecture House With Center Line Plan CAD Drawing
Description
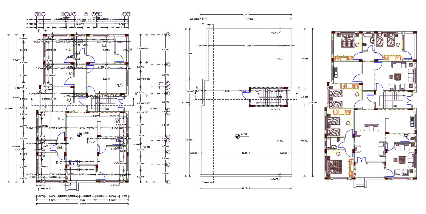
The architecture AutoCAD drawing of 40 by 65 feet joint house ground floor plan and terrace plan design with furniture layout includes 3 BHK and 2 BHK house plan. the construction working column center line plan and wall detail. download 2600 square feet house plan design AutoCAD file.
Uploaded by:

