2600 House Construction Working Plan CAD Drawing
Description
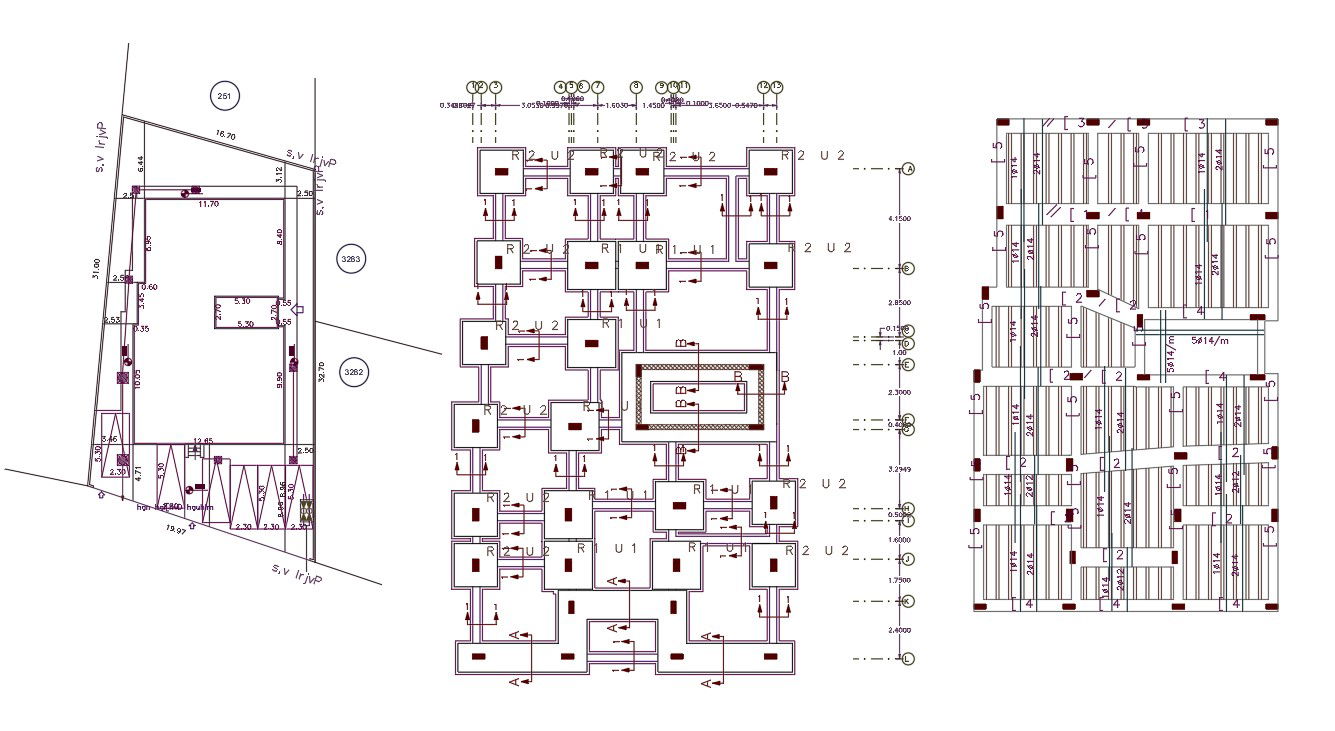
AutoCAD drawing of 2600 square feet joint house construction working plan CAD drawing includes column footing foundation plan excavation detail, reinforcement slab bar structure and center line plan detail. download 40 by 65 feet house concrete plan detail DWG file.
File Type:
DWG
File Size:
83 KB
Category::
Construction
Sub Category::
Construction Detail Drawings
type:
Gold
Uploaded by:

