Single Storey Residence House Building Design CAD Drawing
Description
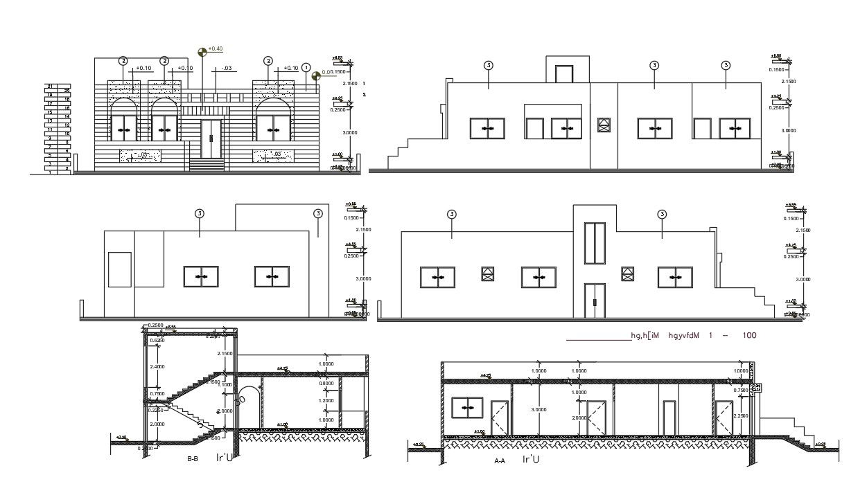
The modern architecture house building all side elevation design and section drawing that shows a number of window and door marking with dimension detail. download single storey house building design DWG file.
Uploaded by:
