4 Bedroom House Furniture Layout Plan Design DWG File
Description
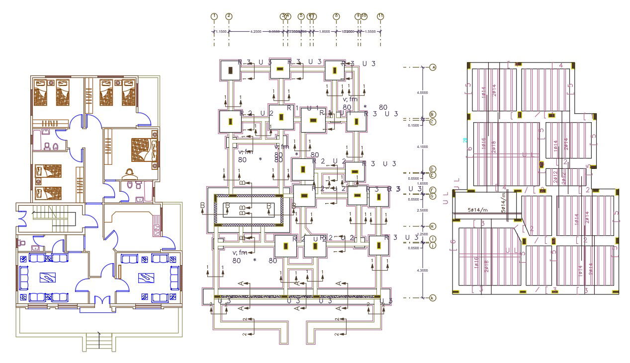
The architecture residence house centre line plan design CAD drawing includes a foundation plan and slab bar structure design with dimension detail. the residence house furniture layout plan includes 4 bedrooms, kitchen, drawing and living room with attached toilet for guest and family. download luxurious house plan design DWG file.
Uploaded by:

