4 BHK House Plumbing Layout CAD Drawing
Description
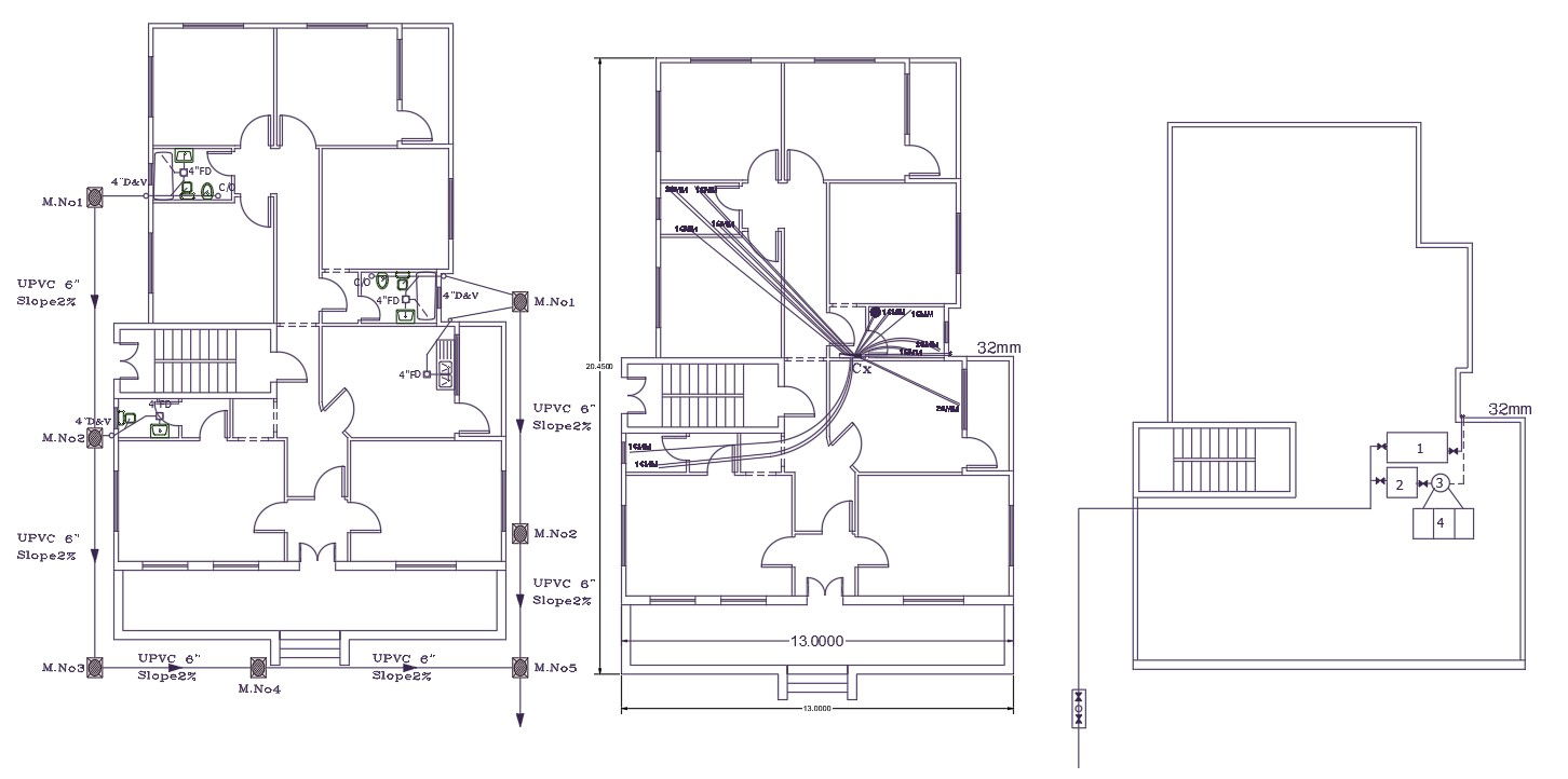
The residence house water and plumbing systems CAD drawing provide guidelines of pipeline connected a bathroom to the kitchen. also has a gutter line for wastage water chamber box line that directly connected to a public manhole. download 42 by 65 feet 4 BHK house plumbing plan design DWG file.
Uploaded by:

