Architecture Bungalow Furniture Plan AutoCAD File
Description
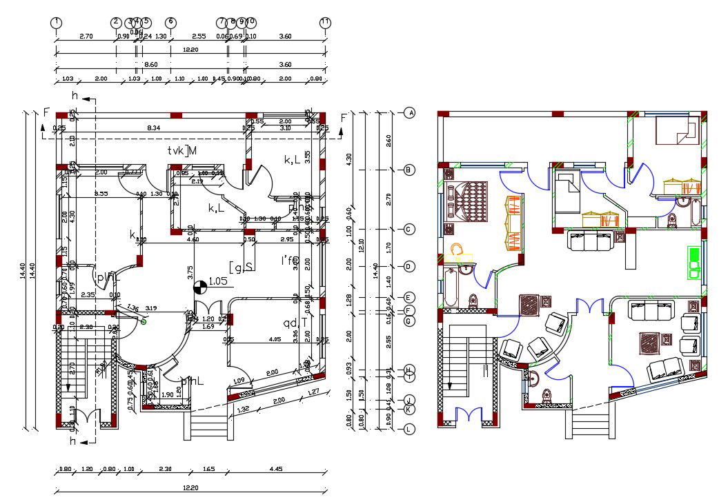
40 by 47 feet architecture AutoCAD modern house plan CAD drawing includes 3 bedrooms, kitchen, drawing room, living area and toilet near to drawing room guest and family. download AutoCAD file of centre line house plan and furniture layout design DWG file.
Uploaded by:

