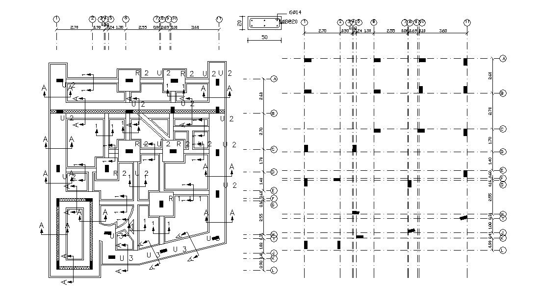
3 BHK House Foundation Plan With Center Line CAD Drawing
Description
40 by 47 feet plot size for 3 BHK house construction working plan CAD drawing includes a foundation plan with excavation detail, column centre line plan and column layout plan design. download concrete house working plan and dimension detail DWG file.
File Type:
DWG
File Size:
995 KB
Category::
Construction
Sub Category::
Construction Detail Drawings
type:
Gold
Uploaded by:

