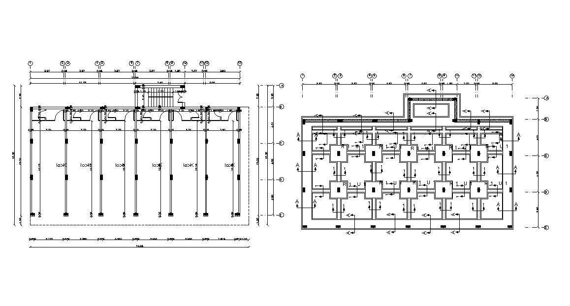
Commercial Shop Construction Plan With Center Line Drawing
Description
the commercial shop floor plan CAD drawing includes column layout plan and foundation plan with column footing detail. download construction shop foundation plan with centerline plan DWG file.
Uploaded by:

