37 X 55 Feet House Furniture Plan AutoCAD File
Description
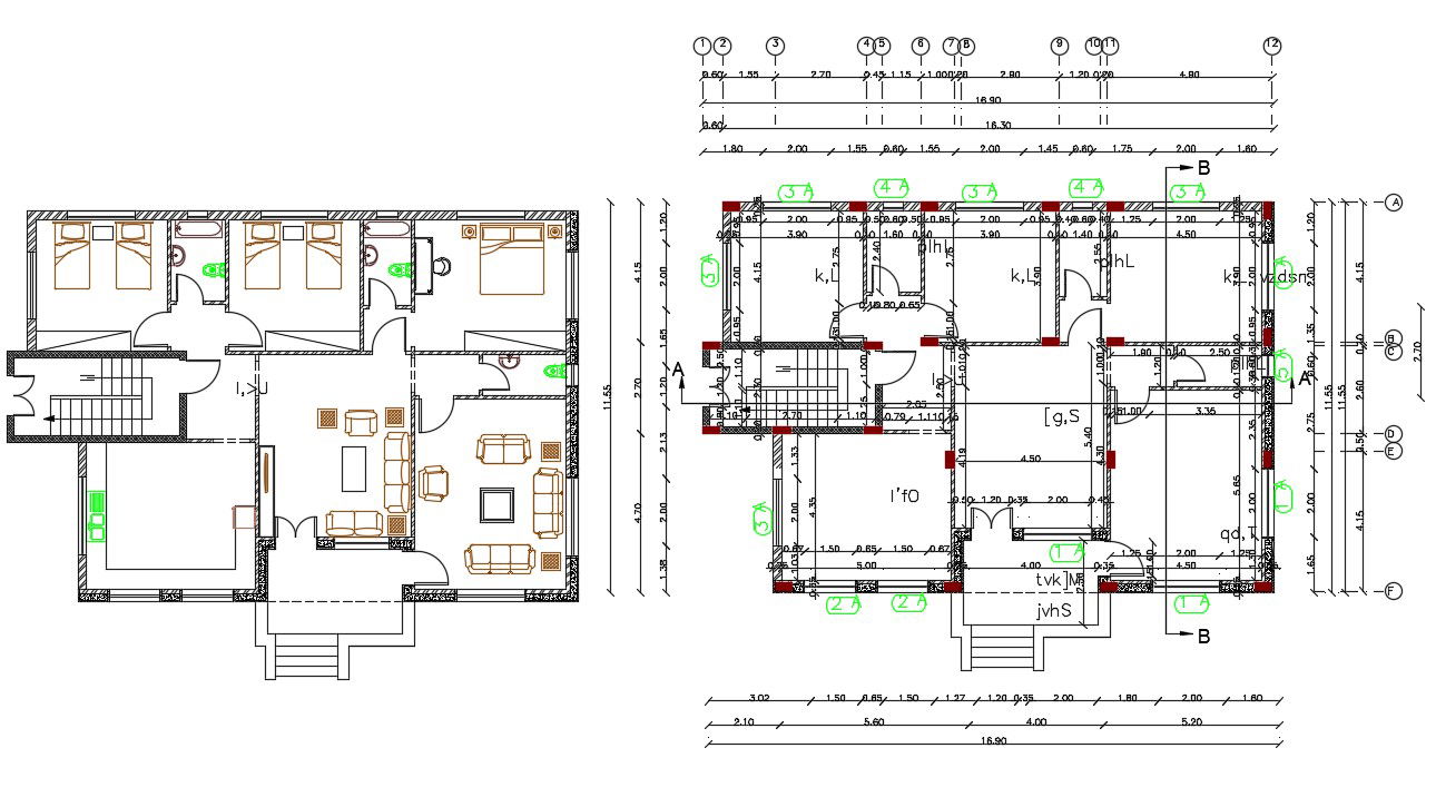
The modern architecture residence house ground floor plan with furniture layout plan design with centerline plan CAD drawing shows 3 bedrooms, modular kitchen, drawing room and living area with a dimensioned detail. download 3 BHK house plan design DWG file.
Uploaded by:

