Single Storey House Building Section Drawing DWG File
Description
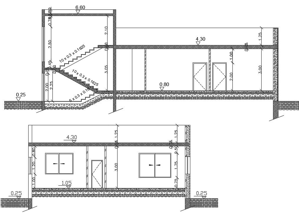
2d CAD drawing of residence house building section drawing front and side view with dimension detail that shows RCC slab and concrete floor plan design. download small house section drawing DWG file.
Uploaded by:

