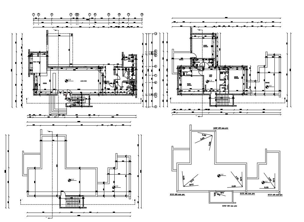
3 Master Bedrooms House Plan AutoCAD File
Description
52 X 78 Feet Plot size for 2 storey residence house plan CAD drawing includes 3 master bedrooms, large open kitchen with views to the living room, and family dining with centerline plan and dimension detail. download 3 BHK complete house plan design DWG file.
Uploaded by:
