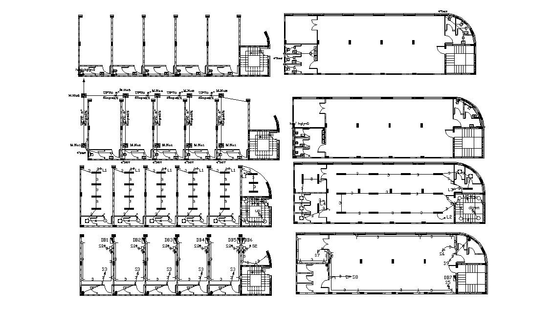
Commercial Building Plumbing And Electrical Plan Design
Description
the commercial shop floor plan design CAD drawing includes electrical wiring plan and plumbing layout plan detail that will help to proper installation. download commercial shop floor plan design DWG file.
Uploaded by:

